JACKSON NORTH POINT: AN EXEPTIONAL FACILITY WITH ALL THE FINEST AMENITIES
3159 Royal Drive Suite 320 Alpharetta, GA 30022
(770)394-8700
Email Atlanta
North Point Suites
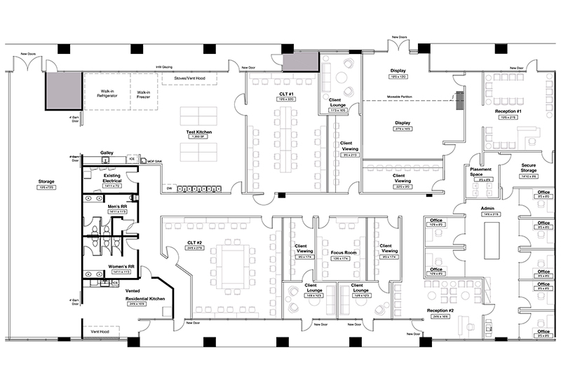
North Point Floor Plan
Hotel Partnerships